VAN DROMEN TOT WONEN
Deze LUX.A liefhebbers gingen je voor
Appartement Amsterdam
"LUX.A heeft een mooi ontwerp gemaakt van ons appartement in Amsterdam. Met haar ontwerp heeft Phylicia het maximale uit ons appartement weten te halen. Echt een hele goede service."
Douwe | Amsterdam


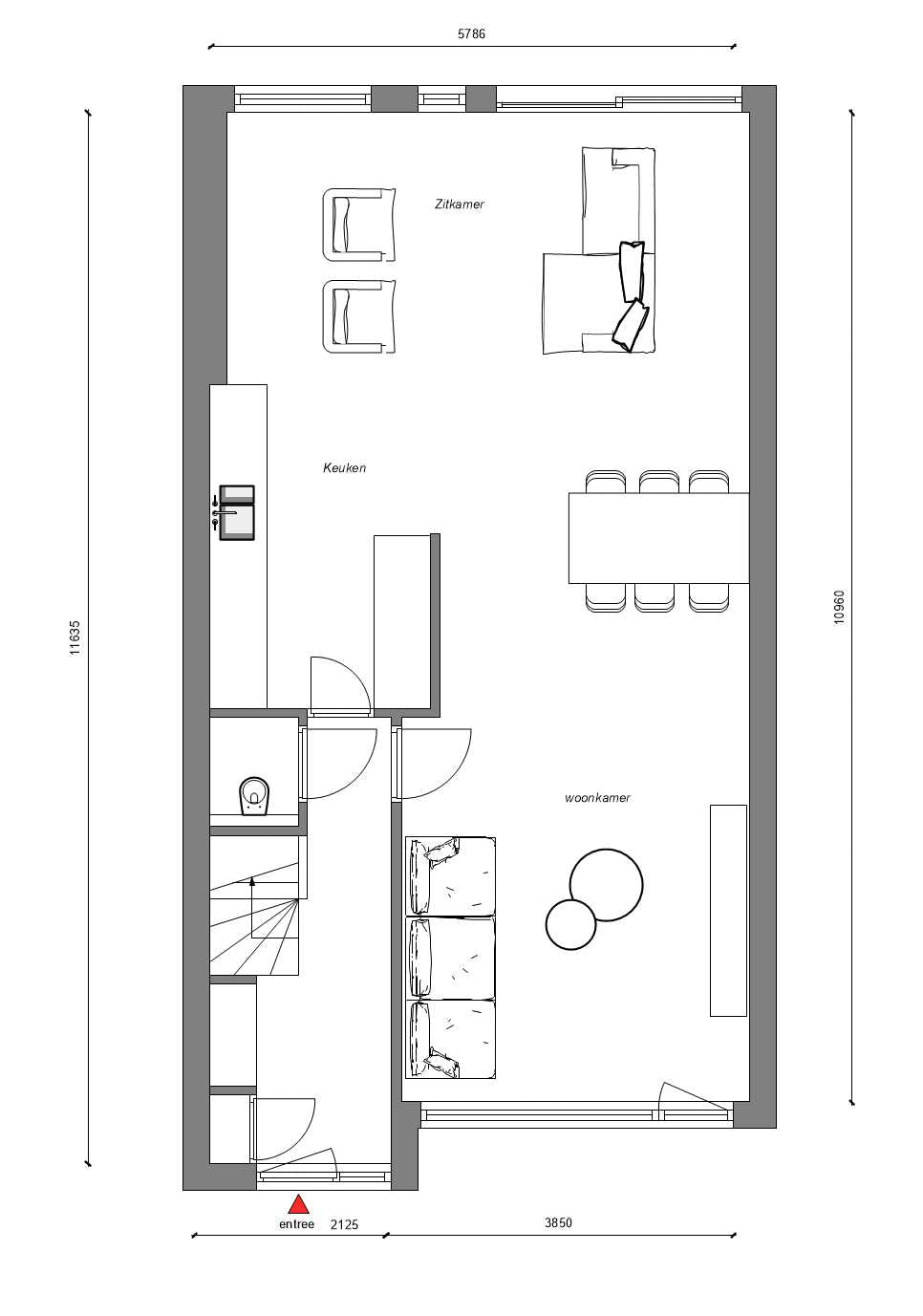
Eengezinswoning Purmerend
"Dit huis hebben we gekocht met de gedachte om de bg te verbouwen. De aannemer hadden we al. Na vele indelingen zelf te hebben gemaakt kwamen we er niet uit en hebben wij Phylicia om hulp gevraagd. Ze kwam met een verassende indeling! Top gedaan. Wij gaan aan de slag."
Marije | Purmerend


TIJDSLIJN
Documenten opsturen
Wij ontvangen de bestanden zoals een plattegrond van Funda of aannemer waarin de ruimtes goed zijn aangegeven en gemaatvoerd. Maar ook je woonwensen en meubilair wat behouden moet blijven.
Schetsontwerp
U ontvangt het eerste schetsontwerp binnen 1 week per mail.
Feedback (1x)
U laat ons via de mail weten wat u vindt en anders kan aan de hand van uw wensen.
Definitief ontwerp
Binnen 1 week ontvangt u het definitieve ontwerp in PDF en CAD tekening